F-City Bahnhofsviertel (CBD)
Am Hauptbahnhof 12 / Taunusstraße 49
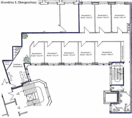
Objektdaten
- FlächeMiete €/m2*Teilbar
- Büro: 600 m218,50 - 19,50auf Anfrage
- Bezug01/2024
- Baujahr1907
- Sanierung2001
- AusstattungAbgehängte Decken
Blendschutz innenliegend
Einbauschränke
Glastrennwände
Großraumeignung
Teeküche(n) ausgestattet
WC-Bereich(e) neuwertig
Brandmeldeanlage
Kameraüberwachung
Repräsentative EingangshalleBAP-Leuchten (integriert)
EDV-Netzwerk
Flexible Raumaufteilung
Glastrennwände (teilweise)
Stuckdecken
Teppichboden
Alarmanlage
Empfangstheke
Personenaufzüge
Zugangskontrolle (Codetasten) - VerkabelungKabelkanäle
- KlimatisierungVollklimatisierung
- RaumhöheEG 2,30 - 5,43 m
OG 2,30 - 5,43 m - Energiepass in Vorbereitung, wird nachgereicht
- * zzgl. Nebenkosten und Ust.
Verkehrsanbindung / Erreichbarkeit / ÖPNV
- S-Bahnca. 100 m (alle (S1-S9))
- U-Bahnca. 100 m (Linien U4, U5)
- Straßenbahnca. 100 m (Linien 11, 12, 14, 15, 16, 21, 17)
- Busca. 100 m (Linien 35, 37, 46)
- A66, A5, A648ca. 3.000 m





