F-Süd Sachsenhausen
MainMichelangelo
Gerbermühlstr. 7-11
Objektdaten
- FlächeMiete €/m2*Teilbar
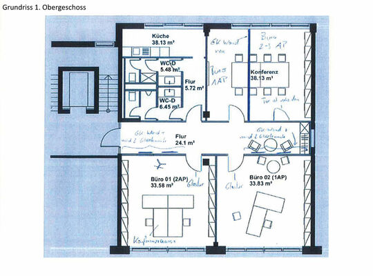
- Büro: 577 m213,00 - 13,70ab 172 m2
- Bezugkurzfristig - 11/2023
- Baujahr2002
- AusstattungBAP-Beleuchtung
Öffenbare Fenster
Sonnenschutz außen (el.)
Kameraüberwachung
Zugangskontrolle (Codekarten)Flexible Raumaufteilung
Sonnen-/Schallschutzverglasung
Hausmeisterdienst 24/7
Personenaufzüge - VerkabelungDoppelboden
- KlimatisierungBe- und Entlüftung
- Fensterraster1,35 m
- RaumhöheEG 3,00 m
OG 2,75 m - Raumtiefe5,50 m
- Bodentragkraft500,00 - 1000,00 kg/m2
- Energiepass in Vorbereitung, wird nachgereicht
- * zzgl. Nebenkosten und Ust.
Verkehrsanbindung / Erreichbarkeit / ÖPNV
- S-Bahnca. 700 m (S3, S4, S5, S6)
- U-Bahnca. 1.000 m (Linien U1-U3, U8)
- Straßenbahnca. 500 m (Linien 14, 16)
- Busca. 200 m (Linie 46)
- A661ca. 3.200 m







